ブライトタウン西伝寺
- 物件価格
- 1,190万円
- 所在地
- 浜松市中央区西伝寺町230-1 ブライトタウン西伝寺1005号室
- 交通
- 東海道本線「浜松」
- 最寄バス停
- 「遠鉄ストア西伝寺町西」 徒歩4分
- 学校区
- 芳川北小学校
南陽中学校
※学校区は住所から自動判定したものであり、保証できる情報ではございません。正確な学校区はお問い合わせ下さい。
- 物件更新日:
- 2026年04月11日
この物件のお支払い例
頭金0円/ボーナス払い0円
価格1,190万円
月々のお支払い31,416円
※上記支払例の借入条件:金利0.45%、借入総額1,190万円、借入期間35年
セールスポイント
■最上階で眺望良好! ■南向きで日当り良好な「2SLDK」 ■女性も安心オートロック ■納戸4.7帖 ■幅広い世代で使用できる和室 ■全居室収納完備 ■広々南向きバルコニー ■スーパーまで徒歩3分圏内
「人型アイコン」を地図上にドラッグすることで『Google Street View』に切り替わります。
※地図上の「対象地」は「」の場所を指しています。実際の場所ではない場合がございます。詳しくはお問い合わせください。
物件概要
| 種目 | 中古マンション | ||
|---|---|---|---|
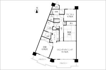
| 間取り | 2SLDK | 間取り内訳 | |
| 専有面積 | 83.99㎡ | 建物構造 | SRC |
| バルコニー面積 | 18.42㎡ | 向き | 南 |
| 階数 | 10階建 | 所在階 | 10階 |
| 築年月(竣工月) | 1990年02月 | 駐車場有無 | |
| 駐車場料金 | 総戸数 | 108 | |
| 管理費 | 6,900円 | 積立金 | 17,000円 |
| 土地権利 | 所有権 | 管理形態/方式 | 管理会社に全部委託/日勤 |
| 用途地域 | |||
| 現況 | 空家 | 取引態様 | 媒介 |
取引条件等
| 引渡し | 即時 |
|---|
その他
| 設備 | 都市ガス、下水道、IHクッキングヒーター、システムキッチン、洗髪洗面化粧台、モニタ付インターホン、コンロ口数(三口),洗濯機置き場室内,洗濯機置き場有,オートロック,エレベータ,バルコニー,駐輪場,バイク置き場,全居室収納 | ||
|---|---|---|---|
| 特徴 | ペット不可,水道(公営),セットバック無 | ||
| 諸条件・相談 | |||
| 情報登録日 | 2026年4月8日 | 情報更新予定日 | 2026年4月25日 |
| 物件番号 | 2603470-41 | 建築確認番号 | |
| 備考・制限等 | *用途地域:一種住居地域 *自治会費:1100円/月 *現状渡し *ペット不可 | ||
この物件の取扱店舗
-

家デパ浜松店
〒430-0856
静岡県浜松市中央区中島1丁目35番20号
- TEL:053-401-6610

