フォレストヒルズ高師みなみ No.2
- 物件価格
- 3,590万円
- 所在地
- 豊橋市芦原町字芦原 フォレストヒルズ高師みなみ No.2
- 交通
- 豊橋鉄道渥美線「芦原」 徒歩7分
- 最寄バス停
- –
- 学校区
- 芦原小学校
本郷中学校
※学校区は住所から自動判定したものであり、保証できる情報ではございません。正確な学校区はお問い合わせ下さい。
- 物件更新日:
- 2026年04月12日
この物件のお支払い例
頭金0円/ボーナス払い0円
価格3,590万円
月々のお支払い94,776円
※上記支払例の借入条件:金利0.45%、借入総額3,590万円、借入期間35年
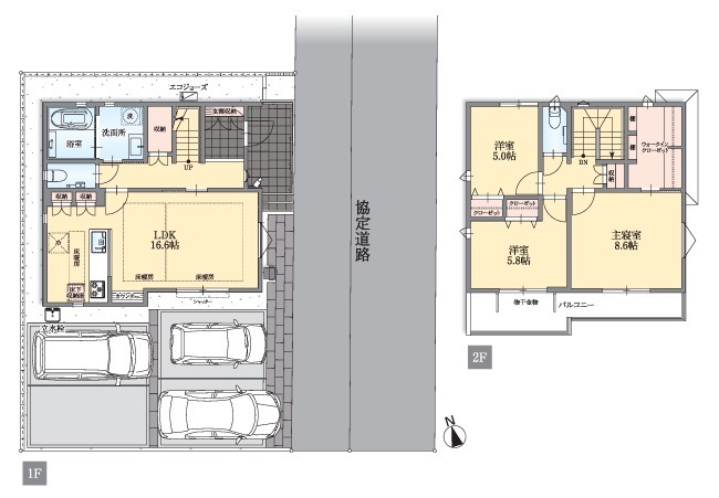
セールスポイント
■渥美線「芦原」駅まで徒歩7分の好立地■床暖房完備の3LDK■主寝室にはウォークインクローゼット■公園、保育施設が徒歩圏内■太陽光発電システム■駐車スペース3台■長期優良住宅
「人型アイコン」を地図上にドラッグすることで『Google Street View』に切り替わります。
※地図上の「対象地」は「」の場所を指しています。実際の場所ではない場合がございます。詳しくはお問い合わせください。
物件概要
| 種目 | 新築一戸建住宅 | ||
|---|---|---|---|
| 間取り | 3LDK | 間取り内訳 | |
| 土地面積 | 178.49㎡ | 私道面積 | |
| 建物面積 | 97.75㎡ | 建物構造規模 | 木造 2階建 |
| 築年月(竣工月) | 2023年07月 | 駐車場 | 空有 |
| 建ぺい率/容積率 | 60%/100% | 都市計画 | 市街化区域 |
| 接道状況 | 北4.4m 公道 一方道路 | ||
| 地目 | 畑 | ||
| 土地権利 | 所有権 | 地勢 | |
| 用途地域 | 第一種住居地域 | ||
| 現況 | 完成済 | 取引態様 | 媒介 |
取引条件等
| 引渡し | 即時 |
|---|
その他
| 設備 | 都市ガス、下水道、システムキッチン、追焚機能、洗髪洗面化粧台、床下収納、ウォークインクローゼット、床暖房、モニタ付インターホン、温水洗浄便座、カウンターキッチン、浴室乾燥機、食器洗浄乾燥機、防犯カメラ、コンロ(ガス),コンロ口数(三口),給湯,全居室収納,シューズインクローゼット,太陽光発電システム,オートバス | ||
|---|---|---|---|
| 特徴 | 外断熱、水道(公営),耐震構造,長期優良住宅認定通知書,セットバック無 | ||
| 諸条件・相談 | |||
| 情報登録日 | 2024年8月4日 | 情報更新予定日 | 2026年4月26日 |
| 物件番号 | t352565-1 | 建築確認番号 | 確認サービス第KS123-0410-51762号他 |
| 備考・制限等 | 道路協定あり(土地面積に協定道路0.5㎡含む) | ||
この物件の取扱店舗
-

家デパ豊橋店
〒441-8052
愛知県豊橋市柱三番町136番地
- TEL:0532-39-4453
-

家デパ豊川店
〒442-0889
愛知県豊川市南大通3丁目28番地
- TEL:0533-56-7072
-

家デパ知立店
〒472-0038
愛知県知立市本町本40番地1 大豊栄ビル1階
- TEL:0566-91-3344



