豊橋市向山町字庚申下 戸建
- 物件価格
- 6,500万円
- 所在地
- 豊橋市向山町字庚申下 豊橋市向山町字庚申下 戸建
- 交通
- 豊橋鉄道東田本線「東八町」 徒歩13分
- 最寄バス停
- –
- 学校区
- 新川小学校
中部中学校
※学校区は住所から自動判定したものであり、保証できる情報ではございません。正確な学校区はお問い合わせ下さい。
- 物件更新日:
- 2026年05月23日
この物件のお支払い例
頭金0円/ボーナス払い0円
価格6,500万円
月々のお支払い171,600円
※上記支払例の借入条件:金利0.45%、借入総額6,500万円、借入期間35年
セールスポイント
■二世帯向き「7SLDK」の3階建て!延床面積363平米超の大空間♪■納戸や倉庫など収納豊富■小・中学校が徒歩圏内■アピタ向山店まで徒歩7分♪生活環境良好■各階にトイレ、洗面台完備
「人型アイコン」を地図上にドラッグすることで『Google Street View』に切り替わります。
※地図上の「対象地」は「〒440-0864 愛知県豊橋市向山町庚申下」の場所を指しています。実際の場所ではない場合がございます。詳しくはお問い合わせください。
物件概要
| 種目 | 中古一戸建住宅 | ||
|---|---|---|---|
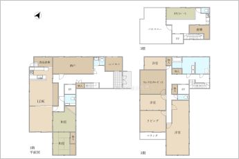
| 間取り | 7SLDK | 間取り内訳 | |
| 土地面積 | 360.17㎡ | 私道面積 | |
| 建物面積 | 363.88㎡ | 建物構造規模 | 木造 3階建 |
| 築年月(竣工月) | 2011年03月 | 駐車場 | 空有 |
| 建ぺい率/容積率 | 60%/200% | 都市計画 | 市街化区域 |
| 接道状況 | 北東8m 公道 接面12m 一方道路 | ||
| 地目 | 宅地 | ||
| 土地権利 | 所有権 | 地勢 | 平坦 |
| 用途地域 | 第一種住居地域 | ||
| 現況 | 所有者居住中 | 取引態様 | 媒介 |
取引条件等
| 引渡し | 相談 |
|---|
その他
| 設備 | 都市ガス、下水道、システムキッチン、追焚機能、ウォークインクローゼット、CATV、モニタ付インターホン、温水洗浄便座、カウンターキッチン、食器洗浄乾燥機、コンロ口数(三口),バルコニー,全居室収納,シューズインクローゼット,オートバス | ||
|---|---|---|---|
| 特徴 | 二世帯向き、水道(公営),デザイナーズ,瑕疵保険(国交省指定)付,セットバック無 | ||
| 諸条件・相談 | |||
| 情報登録日 | 2024年12月28日 | 情報更新予定日 | 2026年6月6日 |
| 物件番号 | 2412135-14131 | 建築確認番号 | |
| 備考・制限等 | ・設備保証利用可 ・建築確認完了検査済証あり、修繕・点検の記録あり | ||
この物件の取扱店舗
-

家デパ豊橋店
〒441-8052
愛知県豊橋市柱三番町136番地
- TEL:0532-39-4453
-

家デパ豊川店
〒442-0889
愛知県豊川市南大通3丁目28番地
- TEL:0533-56-7072
-

家デパ知立店
〒472-0038
愛知県知立市本町本40番地1 大豊栄ビル1階
- TEL:0566-91-3344



