中央区半田山3丁目 戸建
- 物件価格
- 2,850万円
- 所在地
- 浜松市中央区半田山3丁目 中央区半田山3丁目 戸建
- 交通
- 東海道本線「浜松」
- 最寄バス停
- 「三方原営業所」 徒歩6分
- 学校区
- 浜松市立積志小学校
浜松市立積志中学校
※学校区は住所から自動判定したものであり、保証できる情報ではございません。正確な学校区はお問い合わせ下さい。
- 物件更新日:
- 2026年03月09日
この物件のお支払い例
頭金0円/ボーナス払い0円
価格2,850万円
月々のお支払い75,240円
※上記支払例の借入条件:金利0.45%、借入総額2,850万円、借入期間35年
セールスポイント
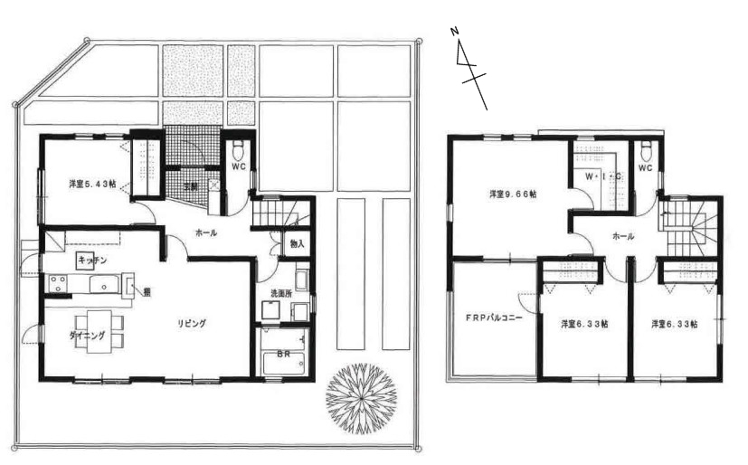
■全居室2面採光「4LDK」 ■南向きリビングで日当たり良好 ■2方向から陽光差し込む角地 ■南庭付き ■2階全居室6帖以上の広々住空間! ■WIC完備! ■全居室収納完備!
「人型アイコン」を地図上にドラッグすることで『Google Street View』に切り替わります。
※地図上の「対象地」は「〒431-3125 静岡県浜松市東区半田山3丁目」の場所を指しています。実際の場所ではない場合がございます。詳しくはお問い合わせください。
物件概要
| 種目 | 中古一戸建住宅 | ||
|---|---|---|---|
| 間取り | 4LDK | 間取り内訳 | |
| 土地面積 | 175.08㎡ | 私道面積 | |
| 建物面積 | 122㎡ | 建物構造規模 | 木造 2階建 |
| 築年月(竣工月) | 2007年04月 | 駐車場 | 空有 |
| 建ぺい率/容積率 | 70%/200% | 都市計画 | 市街化区域 |
| 接道状況 | 北東6m 公道 接面13.2m 北西6m 公道 接面13.5m 角地 | ||
| 地目 | 宅地 | ||
| 土地権利 | 所有権 | 地勢 | |
| 用途地域 | 第一種中高層住居専用地域 | ||
| 現況 | 所有者居住中 | 取引態様 | 媒介 |
取引条件等
| 引渡し | 相談 |
|---|
その他
| 設備 | 床下収納、ウォークインクローゼット、カウンターキッチン、コンロ口数(三口),給湯,全居室収納,太陽光発電システム | ||
|---|---|---|---|
| 特徴 | 水道(公営),セットバック無 | ||
| 諸条件・相談 | |||
| 情報登録日 | 2025年1月31日 | 情報更新予定日 | 2026年3月23日 |
| 物件番号 | 2501624-1 | 建築確認番号 | |
| 備考・制限等 | |||
この物件の取扱店舗
-

家デパ浜松店
〒430-0856
静岡県浜松市中央区中島1丁目35番20号
- TEL:053-401-6610

