エメラルドマンション大池公園
- 物件価格
- 1,550万円
- 所在地
- 豊橋市向山町字伝馬54番地1 エメラルドマンション大池公園102号室
- 交通
- 豊橋鉄道渥美線「柳生橋」 徒歩23分
- 最寄バス停
- –
- 学校区
- 向山小学校
中部中学校
※学校区は住所から自動判定したものであり、保証できる情報ではございません。正確な学校区はお問い合わせ下さい。
- 物件更新日:
- 2026年04月26日
この物件のお支払い例
頭金0円/ボーナス払い0円
価格1,550万円
月々のお支払い40,920円
※上記支払例の借入条件:金利0.45%、借入総額1,550万円、借入期間35年
セールスポイント
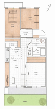
■専用庭付き「3LDK」 ■地下床スペース4帖完備 ■キッチン横に大容量パントリー ■敷地内駐車場有り ■国道1号線までアクセス良好! ■お買い物施設まで近く生活に便利な立地! ■周辺は商業施設が充実
「人型アイコン」を地図上にドラッグすることで『Google Street View』に切り替わります。
※地図上の「対象地」は「」の場所を指しています。実際の場所ではない場合がございます。詳しくはお問い合わせください。
物件概要
| 種目 | 中古マンション | ||
|---|---|---|---|
| 間取り | 3LDK | 間取り内訳 | |
| 専有面積 | 71.6㎡ | 建物構造 | RC |
| バルコニー面積 | 9.95㎡ | 向き | 南東 |
| 階数 | 5階建 | 所在階 | 1階 |
| 築年月(竣工月) | 1988年08月 | 駐車場有無 | 空有 |
| 駐車場料金 | 4,000円 | 総戸数 | 57 |
| 管理費 | 5,800円 | 積立金 | 12,170円 |
| 土地権利 | 所有権 | 管理形態/方式 | 管理会社に全部委託/ |
| 用途地域 | |||
| 現況 | 空家 | 取引態様 | 媒介 |
取引条件等
| 引渡し | 相談 |
|---|
その他
| 設備 | 都市ガス、下水道、システムキッチン、庭、洗濯機置き場室内,バルコニー,駐輪場 | ||
|---|---|---|---|
| 特徴 | 水道(公営),セットバック無 | ||
| 諸条件・相談 | |||
| 情報登録日 | 2025年9月12日 | 情報更新予定日 | 2026年5月10日 |
| 物件番号 | 2508053-41 | 建築確認番号 | |
| 備考・制限等 | 【リフォーム内容】水回り:キッチン、浴室、トイレ、洗面所、内装:床(フローリング等)、壁・天井(クロス・塗装等)、建具(室内ドア等) | ||
この物件の取扱店舗
-

家デパ豊橋店
〒441-8052
愛知県豊橋市柱三番町136番地
- TEL:0532-39-4453
-

家デパ豊川店
〒442-0889
愛知県豊川市南大通3丁目28番地
- TEL:0533-56-7072
-

家デパ知立店
〒472-0038
愛知県知立市本町本40番地1 大豊栄ビル1階
- TEL:0566-91-3344



