中央区半田山4丁目 戸建
- 物件価格
- 6,000万円
- 所在地
- 浜松市中央区半田山4丁目 中央区半田山4丁目 戸建
- 交通
- 遠州鉄道「積志」 徒歩28分
- 最寄バス停
- –
- 学校区
- 積志小学校
積志中学校
※学校区は住所から自動判定したものであり、保証できる情報ではございません。正確な学校区はお問い合わせ下さい。
- 物件更新日:
- 2026年05月09日
この物件のお支払い例
頭金0円/ボーナス払い0円
価格6,000万円
月々のお支払い158,400円
※上記支払例の借入条件:金利0.45%、借入総額6,000万円、借入期間35年
セールスポイント
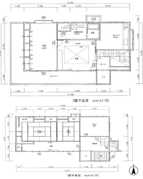
■延床面積約60坪の居室空間!■和室完備の「3SLDK」■日当たり良好、角地!■閑静な住宅街■南向き■明るく開放的な玄関吹抜け!■通気性を高める広縁付き■コンビニ、ドラッグストアが徒歩圏内
「人型アイコン」を地図上にドラッグすることで『Google Street View』に切り替わります。
※地図上の「対象地」は「〒431-3125 静岡県浜松市東区半田山4丁目」の場所を指しています。実際の場所ではない場合がございます。詳しくはお問い合わせください。
物件概要
| 種目 | 中古一戸建住宅 | ||
|---|---|---|---|
| 間取り | 3SLDK | 間取り内訳 | |
| 土地面積 | 568.61㎡ | 私道面積 | |
| 建物面積 | 197.82㎡ | 建物構造規模 | 木造 2階建 |
| 築年月(竣工月) | 1998年08月 | 駐車場 | 空有 |
| 建ぺい率/容積率 | 70%/200% | 都市計画 | |
| 接道状況 | 南6m 公道 接面14m 東6m 公道 接面25m 角地 | ||
| 地目 | 宅地 | ||
| 土地権利 | 所有権 | 地勢 | |
| 用途地域 | 第一種中高層住居専用地域 | ||
| 現況 | 空家 | 取引態様 | 媒介 |
取引条件等
| 引渡し | 即時 |
|---|
その他
| 設備 | 都市ガス、システムキッチン、床下収納、温水洗浄便座、食器洗浄乾燥機、出窓,全居室収納 | ||
|---|---|---|---|
| 特徴 | 水道(公営),セットバック無 | ||
| 諸条件・相談 | |||
| 情報登録日 | 2025年10月11日 | 情報更新予定日 | 2026年5月23日 |
| 物件番号 | 2509510-431 | 建築確認番号 | |
| 備考・制限等 | 車庫(倉庫):158.40平米(47.91坪) 鉄筋コンクリート造陸屋根平屋建 ※建物構造:鉄骨・木造 | ||
この物件の取扱店舗
-

家デパ浜松店
〒430-0856
静岡県浜松市中央区中島1丁目35番20号
- TEL:053-401-6610

