刈谷市小垣江町3 No.5
- 物件価格
- 4,590万円
- 所在地
- 刈谷市小垣江町半崎 刈谷市小垣江町3 No.5
- 交通
- 名鉄三河線「小垣江」 徒歩12分
- 最寄バス停
- –
- 学校区
- 小垣江小学校
依佐美中学校
※学校区は住所から自動判定したものであり、保証できる情報ではございません。正確な学校区はお問い合わせ下さい。
- 物件更新日:
- 2026年05月09日
この物件のお支払い例
頭金0円/ボーナス払い0円
価格4,590万円
月々のお支払い121,176円
※上記支払例の借入条件:金利0.45%、借入総額4,590万円、借入期間35年
セールスポイント
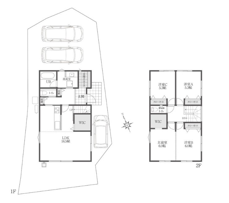
■注文住宅仕様! ■家具付き分譲住宅 ■安心のオール電化住宅 ■WIC完備「4LDK」 ■角地で日当りと風通し良好 ■便利な土間収納付き ■会話弾むリビング階段 ■全室2面採光で明るい住まい
「人型アイコン」を地図上にドラッグすることで『Google Street View』に切り替わります。
※地図上の「対象地」は「」の場所を指しています。実際の場所ではない場合がございます。詳しくはお問い合わせください。
物件概要
| 種目 | 新築一戸建住宅 | ||
|---|---|---|---|
| 間取り | 4LDK | 間取り内訳 | |
| 土地面積 | 165.55㎡ | 私道面積 | |
| 建物面積 | 103.51㎡ | 建物構造規模 | 木造 2階建 |
| 築年月(竣工月) | 2026年05月 | 駐車場 | 空有 |
| 建ぺい率/容積率 | 60%/200% | 都市計画 | 市街化区域 |
| 接道状況 | 北3.2m 公道 西2.9m 公道 角地 | ||
| 地目 | 宅地 | ||
| 土地権利 | 所有権 | 地勢 | |
| 用途地域 | 第一種住居地域 | ||
| 現況 | 未完成 | 取引態様 | 媒介 |
取引条件等
| 引渡し | 期日指定 2026年05月 |
|---|
その他
| 設備 | 下水道、IHクッキングヒーター、システムキッチン、ウォークインクローゼット、モニタ付インターホン、温水洗浄便座、浴室乾燥機、食器洗浄乾燥機、コンロ口数(三口),全居室収納,シューズインクローゼット,太陽光発電システム | ||
|---|---|---|---|
| 特徴 | オール電化、免震構造、水道(公営),耐震構造,長期優良住宅認定通知書,セットバック無 | ||
| 諸条件・相談 | |||
| 情報登録日 | 2025年11月29日 | 情報更新予定日 | 2026年5月23日 |
| 物件番号 | c433056-1 | 建築確認番号 | 第愛建2025建築確認02085号 |
| 備考・制限等 | 長期優良住宅 | ||
この物件の取扱店舗
-

家デパ豊橋店
〒441-8052
愛知県豊橋市柱三番町136番地
- TEL:0532-39-4453
-

家デパ豊川店
〒442-0889
愛知県豊川市南大通3丁目28番地
- TEL:0533-56-7072
-

家デパ知立店
〒472-0038
愛知県知立市本町本40番地1 大豊栄ビル1階
- TEL:0566-91-3344



