FelidiaGarden知立市昭和 2号棟
- 物件価格
- 4,480万円
- 所在地
- 知立市昭和4丁目 FelidiaGarden知立市昭和 2号棟
- 交通
- 名鉄名古屋本線「牛田」 徒歩17分
- 最寄バス停
- –
- 学校区
- 知立東小学校
知立南中学校
※学校区は住所から自動判定したものであり、保証できる情報ではございません。正確な学校区はお問い合わせ下さい。
- 物件更新日:
- 2026年05月19日
この物件のお支払い例
頭金0円/ボーナス払い0円
価格4,480万円
月々のお支払い118,272円
※上記支払例の借入条件:金利0.45%、借入総額4,480万円、借入期間35年
セールスポイント
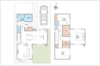
■リビング階段のある3LDK■21.2帖の広々LDK ■シューズインクローゼット ■主寝室には大容量WIC付 ■パントリー ■名鉄名古屋本線「牛田」駅まで徒歩17分 ■帰宅後すぐの手洗い習慣がつく間取
「人型アイコン」を地図上にドラッグすることで『Google Street View』に切り替わります。
※地図上の「対象地」は「」の場所を指しています。実際の場所ではない場合がございます。詳しくはお問い合わせください。
物件概要
| 種目 | 新築一戸建住宅 | ||
|---|---|---|---|
| 間取り | 3LDK | 間取り内訳 | |
| 土地面積 | 131.09㎡ | 私道面積 | |
| 建物面積 | 104.74㎡ | 建物構造規模 | 木造 2階建 |
| 築年月(竣工月) | 2026年05月 | 駐車場 | 空有 |
| 建ぺい率/容積率 | 60%/100% | 都市計画 | 市街化区域 |
| 接道状況 | 北6m 公道 一方道路 | ||
| 地目 | 宅地 | ||
| 土地権利 | 所有権 | 地勢 | 平坦 |
| 用途地域 | 第一種低層住居専用地域 | ||
| 現況 | 未完成 | 取引態様 | 媒介 |
取引条件等
| 引渡し | 期日指定 2026年05月 |
|---|
その他
| 設備 | 下水道、IHクッキングヒーター、システムキッチン、洗髪洗面化粧台、床下収納、ウォークインクローゼット、モニタ付インターホン、温水洗浄便座、浴室乾燥機、食器洗浄乾燥機、コンロ口数(三口),給湯,全居室収納,シューズインクローゼット | ||
|---|---|---|---|
| 特徴 | オール電化、水道(公営),セットバック無 | ||
| 諸条件・相談 | |||
| 情報登録日 | 2025年12月24日 | 情報更新予定日 | 2026年6月2日 |
| 物件番号 | c436843-1 | 建築確認番号 | 第KS125-0420-59870号 |
| 備考・制限等 | 法22条区域 | ||
この物件の取扱店舗
-

家デパ豊橋店
〒441-8052
愛知県豊橋市柱三番町136番地
- TEL:0532-39-4453
-

家デパ豊川店
〒442-0889
愛知県豊川市南大通3丁目28番地
- TEL:0533-56-7072
-

家デパ知立店
〒472-0038
愛知県知立市本町本40番地1 大豊栄ビル1階
- TEL:0566-91-3344



