豊橋市大岩町字佃 戸建
- 物件価格
- 7,275万円
- 所在地
- 豊橋市大岩町字佃 豊橋市大岩町字佃 戸建
- 交通
- 東海道本線「二川」 徒歩9分
- 最寄バス停
- –
- 学校区
- 二川南小学校
二川中学校
※学校区は住所から自動判定したものであり、保証できる情報ではございません。正確な学校区はお問い合わせ下さい。
- 物件更新日:
- 2026年04月21日
この物件のお支払い例
頭金0円/ボーナス払い0円
価格7,275万円
月々のお支払い192,060円
※上記支払例の借入条件:金利0.45%、借入総額7,275万円、借入期間35年
セールスポイント
■300坪以上の広々敷地■家事動線の良い「平屋建て」■東海道本線「二川」駅まで徒歩10分圏内■WIC完備■ゆったりくつろげる和室付き■国道1号線から中に入った閑静な住宅地■前面南道路で日当たり良好
「人型アイコン」を地図上にドラッグすることで『Google Street View』に切り替わります。
※地図上の「対象地」は「〒441-3147 愛知県豊橋市大岩町佃」の場所を指しています。実際の場所ではない場合がございます。詳しくはお問い合わせください。
物件概要
| 種目 | 中古一戸建住宅 | ||
|---|---|---|---|
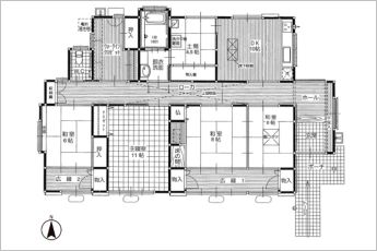
| 間取り | 4DK | 間取り内訳 | |
| 土地面積 | 829.8㎡ | 私道面積 | |
| 建物面積 | 149.25㎡ | 建物構造規模 | 木造 1階建 |
| 築年月(竣工月) | 2002年08月 | 駐車場 | 空有 |
| 建ぺい率/容積率 | 60%/200% | 都市計画 | 市街化区域 |
| 接道状況 | |||
| 地目 | 田 | ||
| 土地権利 | 所有権 | 地勢 | 平坦 |
| 用途地域 | 工業地域 | ||
| 現況 | 所有者居住中 | 取引態様 | 媒介 |
取引条件等
| 引渡し | 相談 |
|---|
その他
| 設備 | 都市ガス、下水道、システムキッチン、床下収納、ウォークインクローゼット | ||
|---|---|---|---|
| 特徴 | 水道(公営),セットバック無 | ||
| 諸条件・相談 | |||
| 情報登録日 | 2025年12月28日 | 情報更新予定日 | 2026年5月5日 |
| 物件番号 | 2509061-41 | 建築確認番号 | |
| 備考・制限等 | 前面道路:南 地番4-4、4-5:隣地賃貸可(建築不可)75坪 | ||
この物件の取扱店舗
-

家デパ豊橋店
〒441-8052
愛知県豊橋市柱三番町136番地
- TEL:0532-39-4453
-

家デパ豊川店
〒442-0889
愛知県豊川市南大通3丁目28番地
- TEL:0533-56-7072
-

家デパ知立店
〒472-0038
愛知県知立市本町本40番地1 大豊栄ビル1階
- TEL:0566-91-3344



