豊橋市上野町新上野3 4号棟
- 物件価格
- 3,880万円
- 所在地
- 豊橋市上野町字新上野 豊橋市上野町新上野3 4号棟
- 交通
- 豊橋鉄道渥美線「高師」 徒歩14分
- 最寄バス停
- –
- 学校区
- 高師小学校
本郷中学校
※学校区は住所から自動判定したものであり、保証できる情報ではございません。正確な学校区はお問い合わせ下さい。
- 物件更新日:
- 2026年05月10日
この物件のお支払い例
頭金0円/ボーナス払い0円
価格3,880万円
月々のお支払い102,432円
※上記支払例の借入条件:金利0.45%、借入総額3,880万円、借入期間35年
セールスポイント
■全居室収納付き「4LDK」■大容量の土間収納完備■開放的な吹き抜けリビング■主寝室にはウォークインクローゼット完備■買い物施設が徒歩圏内で生活便利!■バス停「三本木町」まで徒歩5分!■駐車3台可能
「人型アイコン」を地図上にドラッグすることで『Google Street View』に切り替わります。
※地図上の「対象地」は「」の場所を指しています。実際の場所ではない場合がございます。詳しくはお問い合わせください。
物件概要
| 種目 | 新築一戸建住宅 | ||
|---|---|---|---|
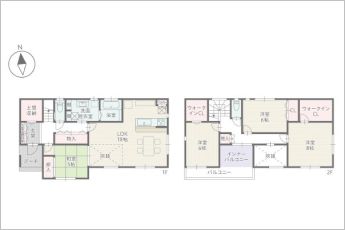
| 間取り | 4LDK | 間取り内訳 | |
| 土地面積 | 177.63㎡ | 私道面積 | |
| 建物面積 | 124.23㎡ | 建物構造規模 | 木造 2階建 |
| 築年月(竣工月) | 2026年01月 | 駐車場 | 空有 |
| 建ぺい率/容積率 | 60%/200% | 都市計画 | 市街化区域 |
| 接道状況 | 南5.3m 公道 一方道路 | ||
| 地目 | |||
| 土地権利 | 所有権 | 地勢 | |
| 用途地域 | 第二種中高層住居専用地域 | ||
| 現況 | 完成済 | 取引態様 | 媒介 |
取引条件等
| 引渡し | 即時 |
|---|
その他
| 設備 | 都市ガス、下水道、システムキッチン、追焚機能、洗髪洗面化粧台、床下収納、ウォークインクローゼット、モニタ付インターホン、温水洗浄便座、カウンターキッチン、浴室乾燥機、食器洗浄乾燥機、コンロ口数(三口),給湯,全居室収納,シューズインクローゼット,オートバス | ||
|---|---|---|---|
| 特徴 | 水道(公営),耐震構造,設計住宅性能評価書,建設住宅性能評価書(新築時),長期優良住宅認定通知書,セットバック無 | ||
| 諸条件・相談 | |||
| 情報登録日 | 2026年2月8日 | 情報更新予定日 | 2026年5月24日 |
| 物件番号 | t438300 | 建築確認番号 | 第R07確認建築愛建住セ10362号 |
| 備考・制限等 | 市街化区域・法22条区域・下水道処理区域・居住誘導区域・宅地造成等工事規制区域 ※長期優良住宅 | ||
この物件の取扱店舗
-

家デパ豊橋店
〒441-8052
愛知県豊橋市柱三番町136番地
- TEL:0532-39-4453
-

家デパ豊川店
〒442-0889
愛知県豊川市南大通3丁目28番地
- TEL:0533-56-7072
-

家デパ知立店
〒472-0038
愛知県知立市本町本40番地1 大豊栄ビル1階
- TEL:0566-91-3344



