クレイドルガーデン中央区豊町第2 1号棟
- 物件価格
- 2,690万円
- 所在地
- 浜松市中央区豊町 クレイドルガーデン中央区豊町第2 1号棟
- 交通
- 東海道本線「浜松」
- 最寄バス停
- 「笠井上町」 徒歩9分
- 学校区
- 豊西小学校
笠井中学校
※学校区は住所から自動判定したものであり、保証できる情報ではございません。正確な学校区はお問い合わせ下さい。
- 物件更新日:
- 2026年05月16日
この物件のお支払い例
頭金0円/ボーナス払い0円
価格2,690万円
月々のお支払い71,016円
※上記支払例の借入条件:金利0.45%、借入総額2,690万円、借入期間35年
セールスポイント
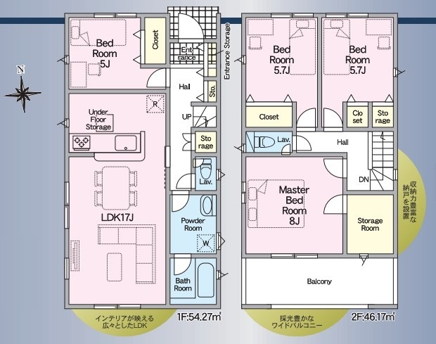
■耐震 + 制震の家、QUIE(クワイエ)■1階独立洋室 ■書斎としても利用可能な寝室内ストレージルーム ■帰宅後すぐの手洗い可能な間取 ■ワイドバルコニー ■来客時にも安心の駐車4台可能
「人型アイコン」を地図上にドラッグすることで『Google Street View』に切り替わります。
※地図上の「対象地」は「」の場所を指しています。実際の場所ではない場合がございます。詳しくはお問い合わせください。
物件概要
| 種目 | 新築一戸建住宅 | ||
|---|---|---|---|
| 間取り | 4LDK | 間取り内訳 | |
| 土地面積 | 221.64㎡ | 私道面積 | |
| 建物面積 | 100.44㎡ | 建物構造規模 | 木造 2階建 |
| 築年月(竣工月) | 2026年05月 | 駐車場 | 空有 |
| 建ぺい率/容積率 | 60%/200% | 都市計画 | 市街化調整区域 |
| 接道状況 | 北4m 公道 接面5.7m 一方道路 | ||
| 地目 | 宅地 | ||
| 土地権利 | 所有権 | 地勢 | |
| 用途地域 | 無指定 | ||
| 現況 | 未完成 | 取引態様 | 媒介 |
取引条件等
| 引渡し | 期日指定 2026年05月 |
|---|
その他
| 設備 | プロパンガス、浄化槽、システムキッチン、追焚機能、洗髪洗面化粧台、床下収納、モニタ付インターホン、温水洗浄便座、カウンターキッチン、浴室乾燥機、防犯カメラ、コンロ口数(三口),給湯,バルコニー,全居室収納,オートバス | ||
|---|---|---|---|
| 特徴 | バリアフリー、免震構造、水道(公営),耐震基準適合証明書,耐震構造,設計住宅性能評価書,建設住宅性能評価書(新築時),セットバック無 | ||
| 諸条件・相談 | |||
| 情報登録日 | 2026年2月10日 | 情報更新予定日 | 2026年5月30日 |
| 物件番号 | h442251 | 建築確認番号 | 第R07SHC122970号 |
| 備考・制限等 | 建基法22条指定区域、宅地造成及び盛土等規制法、接道:北側自主後退1.5米(1・2号棟)、1米(3・4号棟) | ||
この物件の取扱店舗
-

家デパ浜松店
〒430-0856
静岡県浜松市中央区中島1丁目35番20号
- TEL:053-401-6610

