クレイドルガーデン高浜市稗田町第7 3号棟
- 物件価格
- 2,490万円
- 所在地
- 高浜市稗田町5丁目 クレイドルガーデン高浜市稗田町第7 3号棟
- 交通
- 名鉄三河線「高浜港」 徒歩3分
- 最寄バス停
- –
- 学校区
- 高浜小学校
南中学校
※学校区は住所から自動判定したものであり、保証できる情報ではございません。正確な学校区はお問い合わせ下さい。
- 物件更新日:
- 2026年04月19日
この物件のお支払い例
頭金0円/ボーナス払い0円
価格2,490万円
月々のお支払い65,736円
※上記支払例の借入条件:金利0.45%、借入総額2,490万円、借入期間35年
セールスポイント
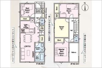
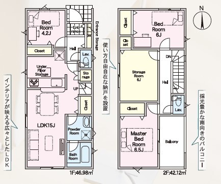
■「高浜港」駅がすぐ近くアクセス良好!■ストレージルーム完備の「3SLDK」■全居室収納付■耐震 + 制震の家、QUIE(クワイエ)■小・中学校が徒歩圏内!■買い物施設が徒歩圏内■駐車スペース2台可能
「人型アイコン」を地図上にドラッグすることで『Google Street View』に切り替わります。
※地図上の「対象地」は「」の場所を指しています。実際の場所ではない場合がございます。詳しくはお問い合わせください。
物件概要
| 種目 | 新築一戸建住宅 | ||
|---|---|---|---|
| 間取り | 3SLDK | 間取り内訳 | |
| 土地面積 | 105.38㎡ | 私道面積 | |
| 建物面積 | 89.1㎡ | 建物構造規模 | 木造 2階建 |
| 築年月(竣工月) | 2026年03月 | 駐車場 | 空有 |
| 建ぺい率/容積率 | 60%/200% | 都市計画 | 市街化区域 |
| 接道状況 | 北3.8m 公道 接面6.6m 一方道路 | ||
| 地目 | 宅地 | ||
| 土地権利 | 所有権 | 地勢 | |
| 用途地域 | 準工業地域 | ||
| 現況 | 完成済 | 取引態様 | 媒介 |
取引条件等
| 引渡し | 即時 |
|---|
その他
| 設備 | 都市ガス、下水道、システムキッチン、追焚機能、洗髪洗面化粧台、床下収納、ウォークインクローゼット、モニタ付インターホン、温水洗浄便座、カウンターキッチン、浴室乾燥機、防犯カメラ、コンロ口数(三口),給湯,全居室収納,オートバス | ||
|---|---|---|---|
| 特徴 | バリアフリー、免震構造、水道(公営),耐震基準適合証明書,耐震構造,設計住宅性能評価書,建設住宅性能評価書(新築時),セットバック有 | ||
| 諸条件・相談 | |||
| 情報登録日 | 2026年2月22日 | 情報更新予定日 | 2026年5月3日 |
| 物件番号 | c443856 | 建築確認番号 | 第HPA-26-01003-1号 |
| 備考・制限等 | ・建基法22条指定区域、宅地造成工事規制区域 | ||
この物件の取扱店舗
-

家デパ豊橋店
〒441-8052
愛知県豊橋市柱三番町136番地
- TEL:0532-39-4453
-

家デパ豊川店
〒442-0889
愛知県豊川市南大通3丁目28番地
- TEL:0533-56-7072
-

家デパ知立店
〒472-0038
愛知県知立市本町本40番地1 大豊栄ビル1階
- TEL:0566-91-3344



