刈谷市築地一丁目 2号棟
- 物件価格
- 5,480万円
- 所在地
- 刈谷市築地町1丁目 刈谷市築地一丁目 2号棟
- 交通
- 名鉄名古屋本線「一ツ木」 徒歩17分
- 最寄バス停
- –
- 学校区
- かりがね小学校
雁が音中学校
※学校区は住所から自動判定したものであり、保証できる情報ではございません。正確な学校区はお問い合わせ下さい。
- 物件更新日:
- 2026年04月30日
この物件のお支払い例
頭金0円/ボーナス払い0円
価格5,480万円
月々のお支払い144,672円
※上記支払例の借入条件:金利0.45%、借入総額5,480万円、借入期間35年
セールスポイント
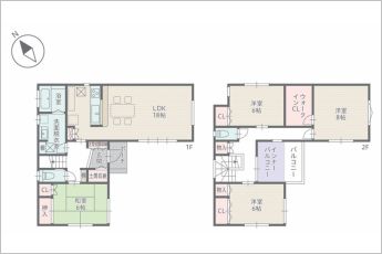
■独立和室6帖! ■長期優良住宅物件 ■全室2面採光で日当り良好 ■全室6帖以上「4LDK」 ■主寝室にWIC完備 ■天候に左右されないインナーバルコニー ■土間収納 ■パントリー ■全居室収納完備
「人型アイコン」を地図上にドラッグすることで『Google Street View』に切り替わります。
※地図上の「対象地」は「」の場所を指しています。実際の場所ではない場合がございます。詳しくはお問い合わせください。
物件概要
| 種目 | 新築一戸建住宅 | ||
|---|---|---|---|
| 間取り | 4LDK | 間取り内訳 | |
| 土地面積 | 119.82㎡ | 私道面積 | |
| 建物面積 | 121.32㎡ | 建物構造規模 | 木造 2階建 |
| 築年月(竣工月) | 2026年01月 | 駐車場 | 空有 |
| 建ぺい率/容積率 | 60%/150% | 都市計画 | 市街化区域 |
| 接道状況 | 南東6m 公道 一方道路 | ||
| 地目 | |||
| 土地権利 | 所有権 | 地勢 | |
| 用途地域 | 第一種中高層住居専用地域 | ||
| 現況 | 完成済 | 取引態様 | 媒介 |
取引条件等
| 引渡し | 即時 |
|---|
その他
| 設備 | 都市ガス、下水道、システムキッチン、洗髪洗面化粧台、床下収納、ウォークインクローゼット、モニタ付インターホン、温水洗浄便座、カウンターキッチン、浴室乾燥機、コンロ口数(三口),給湯,全居室収納,シューズインクローゼット | ||
|---|---|---|---|
| 特徴 | 水道(公営),耐震構造,設計住宅性能評価書,建設住宅性能評価書(新築時),長期優良住宅認定通知書,セットバック無 | ||
| 諸条件・相談 | |||
| 情報登録日 | 2026年3月9日 | 情報更新予定日 | 2026年5月14日 |
| 物件番号 | c443453 | 建築確認番号 | 第KS125-0420-54234号 |
| 備考・制限等 | 法22条区域・下水道処理区域・居住誘導区域・宅地造成等工事規制区域 長期優良住宅 | ||
この物件の取扱店舗
-

家デパ豊橋店
〒441-8052
愛知県豊橋市柱三番町136番地
- TEL:0532-39-4453
-

家デパ豊川店
〒442-0889
愛知県豊川市南大通3丁目28番地
- TEL:0533-56-7072
-

家デパ知立店
〒472-0038
愛知県知立市本町本40番地1 大豊栄ビル1階
- TEL:0566-91-3344



