ハートフルタウン磐田市見付3596番 C号棟
- 物件価格
- 3,090万円
- 所在地
- 磐田市見付 ハートフルタウン磐田市見付3596番 C号棟
- 交通
- 東海道本線「磐田」 徒歩31分
- 最寄バス停
- –
- 学校区
- 磐田北小学校
城山中学校
※学校区は住所から自動判定したものであり、保証できる情報ではございません。正確な学校区はお問い合わせ下さい。
- 物件更新日:
- 2026年04月18日
この物件のお支払い例
頭金0円/ボーナス払い0円
価格3,090万円
月々のお支払い81,576円
※上記支払例の借入条件:金利0.45%、借入総額3,090万円、借入期間35年
セールスポイント
■全居室南向きで陽当たり良好!■家事動線の良い間取り「4LDK」■シューズクローク完備で玄関スッキリ■ウォークインクローゼット完備■駐車スペース並列2台可能■磐田北小学校まで徒歩10分!■閑静な住宅地
「人型アイコン」を地図上にドラッグすることで『Google Street View』に切り替わります。
※地図上の「対象地」は「」の場所を指しています。実際の場所ではない場合がございます。詳しくはお問い合わせください。
物件概要
| 種目 | 新築一戸建住宅 | ||
|---|---|---|---|
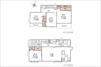
| 間取り | 4LDK | 間取り内訳 | |
| 土地面積 | 177.7㎡ | 私道面積 | |
| 建物面積 | 56.3㎡ | 建物構造規模 | 木造 2階建 |
| 築年月(竣工月) | 2026年09月 | 駐車場 | 空有 |
| 建ぺい率/容積率 | 60%/150% | 都市計画 | 市街化区域 |
| 接道状況 | 西4m 公道 一方道路 | ||
| 地目 | 宅地 | ||
| 土地権利 | 所有権 | 地勢 | |
| 用途地域 | 第一種中高層住居専用地域 | ||
| 現況 | 未完成 | 取引態様 | 媒介 |
取引条件等
| 引渡し | 期日指定 2026年09月 |
|---|
その他
| 設備 | 都市ガス、下水道、システムキッチン、追焚機能、洗髪洗面化粧台、床下収納、ウォークインクローゼット、モニタ付インターホン、温水洗浄便座、カウンターキッチン、浴室乾燥機、コンロ口数(三口),給湯,全居室収納,シューズインクローゼット,オートバス | ||
|---|---|---|---|
| 特徴 | バリアフリー、水道(公営),セットバック無 | ||
| 諸条件・相談 | |||
| 情報登録日 | 2026年4月18日 | 情報更新予定日 | 2026年5月2日 |
| 物件番号 | h450956 | 建築確認番号 | 第2025確認建築静建住ま13373号 |
| 備考・制限等 | ・法第22条区域、景観法 | ||
この物件の取扱店舗
-

家デパ浜松店
〒430-0856
静岡県浜松市中央区中島1丁目35番20号
- TEL:053-401-6610

