クレイドルガーデン豊川市赤坂町第4 1号棟
- 物件価格
- 2,390万円
- 所在地
- 豊川市赤坂町会下山 クレイドルガーデン豊川市赤坂町第4 1号棟
- 交通
- 名鉄名古屋本線「名電赤坂」 徒歩13分
- 最寄バス停
- –
- 学校区
- 赤坂小学校
音羽中学校
※学校区は住所から自動判定したものであり、保証できる情報ではございません。正確な学校区はお問い合わせ下さい。
- 物件更新日:
- 2026年04月26日
この物件のお支払い例
頭金0円/ボーナス払い0円
価格2,390万円
月々のお支払い63,096円
※上記支払例の借入条件:金利0.45%、借入総額2,390万円、借入期間35年
セールスポイント
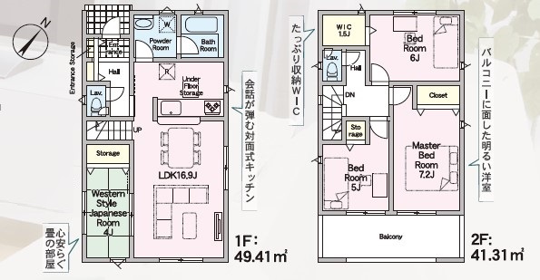
■耐震 + 制震の家、QUIE(クワイエ)■全居室収納付きの4LDK■LDK横の和室は休憩したり宿泊スペースに!■2部屋からアクセスできるバルコニー■ご家族とコミュニケーションがとりやすいリビング階段
「人型アイコン」を地図上にドラッグすることで『Google Street View』に切り替わります。
※地図上の「対象地」は「」の場所を指しています。実際の場所ではない場合がございます。詳しくはお問い合わせください。
物件概要
| 種目 | 新築一戸建住宅 | ||
|---|---|---|---|
| 間取り | 4LDK | 間取り内訳 | |
| 土地面積 | 137.08㎡ | 私道面積 | |
| 建物面積 | 100.44㎡ | 建物構造規模 | 木造 2階建 |
| 築年月(竣工月) | 2026年07月 | 駐車場 | 空有 |
| 建ぺい率/容積率 | 60%/160% | 都市計画 | |
| 接道状況 | 北西8m 公道 接面7m 一方道路 | ||
| 地目 | 宅地 | ||
| 土地権利 | 所有権 | 地勢 | |
| 用途地域 | 第一種低層住居専用地域 | ||
| 現況 | 未完成 | 取引態様 | 媒介 |
取引条件等
| 引渡し | 期日指定 2026年07月 |
|---|
その他
| 設備 | プロパンガス、下水道、システムキッチン、追焚機能、洗髪洗面化粧台、床下収納、ウォークインクローゼット、モニタ付インターホン、温水洗浄便座、カウンターキッチン、浴室乾燥機、防犯カメラ、コンロ口数(三口),給湯,全居室収納,オートバス | ||
|---|---|---|---|
| 特徴 | バリアフリー、免震構造、水道(公営),耐震基準適合証明書,耐震構造,設計住宅性能評価書,建設住宅性能評価書(新築時),セットバック無 | ||
| 諸条件・相談 | |||
| 情報登録日 | 2026年4月26日 | 情報更新予定日 | 2026年5月10日 |
| 物件番号 | t452025 | 建築確認番号 | 第HPA-26-04574-1号 |
| 備考・制限等 | 建基法22条指定区域 | ||
この物件の取扱店舗
-

家デパ豊橋店
〒441-8052
愛知県豊橋市柱三番町136番地
- TEL:0532-39-4453
-

家デパ豊川店
〒442-0889
愛知県豊川市南大通3丁目28番地
- TEL:0533-56-7072
-

家デパ知立店
〒472-0038
愛知県知立市本町本40番地1 大豊栄ビル1階
- TEL:0566-91-3344



