クレイドルガーデン中央区三和町第1期 2号棟
- 物件価格
- 3,290万円
- 所在地
- 浜松市中央区三和町 クレイドルガーデン中央区三和町第1期 2号棟
- 交通
- 東海道本線「浜松」
- 最寄バス停
- 「三和町」 徒歩2分
- 学校区
- 飯田小学校
東部中学校
※学校区は住所から自動判定したものであり、保証できる情報ではございません。正確な学校区はお問い合わせ下さい。
- 物件更新日:
- 2026年04月17日
この物件のお支払い例
頭金0円/ボーナス払い0円
価格3,290万円
月々のお支払い86,856円
※上記支払例の借入条件:金利0.45%、借入総額3,290万円、借入期間35年
セールスポイント
■角地■小中学校が徒歩圏内の安心立地■主寝室にはウォークインクローゼット完備■バス停「三和町」停まで徒歩2分でアクセス良好■買い物施設が徒歩圏内■耐震 + 制震の家、QUIE(クワイエ)■商業施設充実
「人型アイコン」を地図上にドラッグすることで『Google Street View』に切り替わります。
※地図上の「対象地」は「」の場所を指しています。実際の場所ではない場合がございます。詳しくはお問い合わせください。
物件概要
| 種目 | 新築一戸建住宅 | ||
|---|---|---|---|
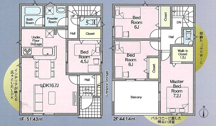
| 間取り | 4SLDK | 間取り内訳 | |
| 土地面積 | 145.49㎡ | 私道面積 | |
| 建物面積 | 95.57㎡ | 建物構造規模 | 木造 2階建 |
| 築年月(竣工月) | 2026年07月 | 駐車場 | 空有 |
| 建ぺい率/容積率 | 70%/200% | 都市計画 | 市街化区域 |
| 接道状況 | 西5.8m 公道 接面12.2m 北6m 公道 接面5.7m 角地 | ||
| 地目 | 宅地 | ||
| 土地権利 | 所有権 | 地勢 | |
| 用途地域 | 第一種住居地域 | ||
| 現況 | 未完成 | 取引態様 | 媒介 |
取引条件等
| 引渡し | 期日指定 2026年07月 |
|---|
その他
| 設備 | 都市ガス、下水道、システムキッチン、追焚機能、洗髪洗面化粧台、床下収納、ウォークインクローゼット、モニタ付インターホン、温水洗浄便座、カウンターキッチン、浴室乾燥機、防犯カメラ、コンロ口数(三口),給湯,全居室収納,オートバス | ||
|---|---|---|---|
| 特徴 | バリアフリー、免震構造、水道(公営),耐震基準適合証明書,耐震構造,設計住宅性能評価書,建設住宅性能評価書(新築時),セットバック無 | ||
| 諸条件・相談 | |||
| 情報登録日 | 2026年4月17日 | 情報更新予定日 | 2026年5月1日 |
| 物件番号 | t450784 | 建築確認番号 | 第R08SHC101441号 |
| 備考・制限等 | ・建基法22条指定区域、宅地造成等工事規制区域、文化財保護法 | ||
この物件の取扱店舗
-

家デパ浜松店
〒430-0856
静岡県浜松市中央区中島1丁目35番20号
- TEL:053-401-6610

